Save
Ask
Tour
Hide
Share
$189,000
60 Days On Site
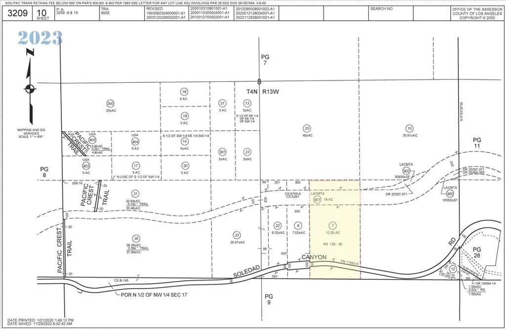
7343 Soledad CanyonActon, CA93510
For Sale|Land|Active
Subdivision:
Custom Acton (CACTO)
County:
Los Angeles
Listed by John Reionn Webber of Vista Verde Services Inc (213) 447-6061
Due to the health concerns created by Coronavirus we are offering personal 1-1 online video walkthough tours where possible.
Call Now: 760-454-7788
Is this the listing for you? We can help make it yours.
760-454-7788



Save
Ask
Tour
Hide
Share
Photos
Map
Nearby Listings
Here is a unique chance to own 16.7 Acres of beautiful piece of California designated as a significant ecological area by LA County. The remaining un channelized Santa Clara River goes through the property surrounded by wild cottonwood forest. Location can serve as a private camping paradise for bird lovers or some one looking for peace and tranquility just a short distance from metropolitan area. Property has gated entrance onto the public road. Most of it is flatland with portion of a FEMA flood zone. Additional conditions to be verified by the buyer.
Save
Ask
Tour
Hide
Share
Listing Snapshot
Price
$189,000
Days On Site
60 Days
Bedrooms
N/A
Inside Area (SqFt)
0.0 sqft
Total Baths
N/A
Full Baths
N/A
Partial Baths
N/A
Lot Size
16.6873 Acres
Year Built
N/A
MLS® Number
TR26011492
Status
Active
Property Tax
N/A
HOA/Condo/Coop Fees
N/A
Sq Ft Source
N/A
Friends & Family
React
Comment
Invite
Recent Activity
| a month ago | Listing updated with changes from the MLS® | |
| a month ago | Price changed to $189,000 | |
| 2 months ago | Listing first seen on site |
Save
Ask
Tour
Hide
Share
Community Features
Financing Terms Available
Cash
Listed by John Reionn Webber of Vista Verde Services Inc (213) 447-6061

This information is deemed reliable but not guaranteed. You should rely on this information only to decide whether or not to further investigate a particular property. BEFORE MAKING ANY OTHER DECISION, YOU SHOULD PERSONALLY INVESTIGATE THE FACTS (e.g. square footage and lot size) with the assistance of an appropriate professional. You may use this information only to identify properties you may be interested in investigating further. All uses except for personal, non-commercial use in accordance with the foregoing purpose are prohibited. Redistribution or copying of this information, any photographs or video tours is strictly prohibited. This information is derived from the Internet Data Exchange (IDX) service provided by San Diego MLS®. Displayed property listings may be held by a brokerage firm other than the broker and/or agent responsible for this display. The information and any photographs and video tours and the compilation from which they are derived is protected by copyright. Copyright © 2026 San Diego MLS®.
Last checked 2026

This information is deemed reliable but not guaranteed. You should rely on this information only to decide whether or not to further investigate a particular property. BEFORE MAKING ANY OTHER DECISION, YOU SHOULD PERSONALLY INVESTIGATE THE FACTS (e.g. square footage and lot size) with the assistance of an appropriate professional. You may use this information only to identify properties you may be interested in investigating further. All uses except for personal, non-commercial use in accordance with the foregoing purpose are prohibited. Redistribution or copying of this information, any photographs or video tours is strictly prohibited. This information is derived from the Internet Data Exchange (IDX) service provided by San Diego MLS®. Displayed property listings may be held by a brokerage firm other than the broker and/or agent responsible for this display. The information and any photographs and video tours and the compilation from which they are derived is protected by copyright. Copyright © 2026 San Diego MLS®.
Last checked 2026
Neighborhood & Commute
Source: Walkscore
Save
Ask
Tour
Hide
Share


Did you know? You can invite friends and family to your search. They can join your search, rate and discuss listings with you.